BIM projektování v praxi
BIM se po pomalejším nástupu stále rychleji prosazuje do reálné praxe. Přibývá investorů, kteří pro své záměry BIM projekt vyžadují. Přibývá projektantů, kteří BIM projekty nabízejí. BIM projekty skutečně existují.
BIM (Building Information Modeling), tedy aspoň z pohledu projektanta, je kvalitativně nový způsob zpracování projektové dokumentace. Nejde jen o generování „standardních“ 2D výkresů a vizualizací z jednoho modelu, ale zcela nové možnosti, například optimalizaci budovy z hlediska energetické náročnosti a to už ve fázi studie. Což je paradoxně možná jedna z největších překážek pro zavádění BIM. Má projektant nabízet služby, které od něho klient neočekává? Má se zdokonalovat v oborech, které pro něj doposavad nebyly zásadní? Má věřit výsledkům, které mu BIM program poskytne? Níže uvedené texty se zabývají právě touto problematikou.
Ekonomické budovy v počítačích projektantů
EcoDesigner, program určený k výpočtu energetické náročnosti plánované budovy ještě ve fázi studie, byl uveden v roce 2009 a později byl plně integrován do ArchiCADu. Nutno říci, že jej však využívá minimum archicadistů. Argumenty jsou:
- program nelze použít pro zpracování Průkazu energetické náročnosti budovy ani energetického štítku (což není cílem programu)
 - výpočet energetické náročnosti musí zpracovat specialista
 - výpočet po stavaři nikdo nechce
 - výpočet stavaři nikdo nezaplatí
 
Dnes, kdy téměř každý stavebník touží po co nejekonomičtějším bydlení a kdy si řada projektantů stěžuje na málo zákazníků, znějí poslední tři argumenty jako z jiného světa. Faktem však je, že nedostatek zkušeností může být zdrojem nedůvěry. Rozhodli jsme se tedy prověřit výpočtové prostředí na několika reálných domech. Postupovat budeme „v protisměru“. Faktury za energii porovnáme se zpětně provedeným výpočtem. Zde je nutné zdůraznit, že se jedná o výpočet skutečné spotřeby v reálné době, nejde o porovnávání s etalonem v daný den.
Charakteristika objektu
Popis domu
Rodinný dům se 2 nadzemními podlažími v obci Bošovice, okres Vyškov (kolaudace v 2007). Objekt tvaru obdélníku o rozměrech 6,975×12,6 m (bez zateplení) ze systému Porotherm, nosné stěny jsou pouze stěny obvodové tl. 300 mm, opatřené kontaktním zateplovacím systémem se 100 mm polystyrenu. Stropní konstrukce nad 1. NP monolitická ŽB deska, v 2. NP strop tvořen zavěšeným SDK podhledem na kleštinách krovu. Sedlová střecha se štítovými zdmi bez přesahů u okapu. Fasáda členěná okenními a dveřními otvory a dřevěným obkladem kopírujícím okap a hranu střechy na štítové zdi. Hlavní vstup do objektu ze západní strany, na východní straně venkovní terasa s dřevěnou pergolou.
Vytápění
Vytápění pomocí plynového nástěnného turbokotle s vývodem ve štítové stěně (kombinace s ohřevem TUV) umístěného v přízemí ve vstupní chodbě. Otopná tělesa v místnostech doplněna podlahovým topením v podobě topné elektrorohože pod keramickou dlažbou v jedné koupelně. V obou koupelnách žebříkový radiátor š. 600 mm. Pro přitápění objektu slouží krb v přízemí (krbová litinová vložka s průměrem kouřovodu 150 mm, umístěná ve schodišťovém prostoru) s 1 komínovým tělesem z nerezového třísložkového systému EKO 300 (pr. 180 mm) uzpůsobeného tak, aby vytápěl 2. NP.
Chování obyvatel domu
Obyvatelé: 2 děti, 2 dospělí. Objekt je nejvíce využíván od 6:00 do 8:00 a od 16:00 do 23:00. Od 23:00 do 6:00 je „noční klid“. Teplota obytných místností 21 °C přes den, v noci snížení na 18 °C. Vzduch v chodbách ohříván na 16 °C. Koupelny vytápěny na 24 °C v době jejich užívání.
Výpočet
Vytvoření BIM projektu
Podkladem pro vytvoření archicadovského projektu byla technická zpráva a PDF výkresy. Při tvorbě projektu byly zaneseny základní konstrukce tak, aby současně vznikl funkční výpočtový model. Horizontální vrstvené konstrukce musejí být vytvořeny jako sendvič. Projekt tedy obsahuje sendvičové obvodové stěny, sendvičové podlahy a střechu a v podstatě se jedná o plnohodnotný projekt v ArchiCADu.
Výpočet energetické náročnosti
Prostory byly vyplněny zónami, které těsně doléhají na ohraničující konstrukce. Pak byl v dialogových oknech výpočtového prostředí dům popsán (větrací systém, vytápění aj.) K tomu slouží tzv. operační profily (obytná místnost, komunikační plochy, koupelny a technické místnosti), které specifikují využívání daného prostoru. V nastavení profilů je zahrnut počet osob, vyjádřený poměrem plocha/osoba. U světelných zdrojů je důležité nastavení času provozu (zde 6–8 a 18–23). Uvažovány byly dále domácí spotřebiče (tv, dvd, satelit, počítač, ntb, mixér, konvice, toustovač, mikr. trouba, lednice, mrazák, pračka, žehlička). Takto se získá průměrná spotřeba energie na m2 plochy (W/m2). Objekt je vytápěn plynovým kondenzačním kotlem o výkonu 5 kW. Z kotle je dále ohřívána TUV na 60 °C. V dalších letech byl následně přidán fotovoltaický panel o výkonu 4,9 kWh.
Ohledně času věnovaného výpočtu lze říci, že lze pracovat s již vytvořenými profily a dalšími přednastaveními, která lze načíst do dalších projektů. V případě zaběhnuté praxe by nastavení a výpočet u projektů srovnatelných se zde popisovaným měl zabrat několik hodin času.
Klíčové hodnoty
(Kompletní zpráva generovaná ArchiCADem viz ENERG. HODNOCENI.pdf)
Porovnání reality s výpočtem
(bez fotovoltaického panelu, za rok)
Skutečná cena za spotřebu plynu je 18 121 Kč
Vypočtená cena za spotřebu plynu je 17 280 Kč
Skutečná cena za spotřebovanou el. energii je 22 900 Kč
Vypočtená cena za el. energii je 22 193 Kč
Celková skutečná cena činí 41 021 Kč
Vypočtená cena činí 39 473 Kč
Rozdíl je 1548 Kč/rok = 129 Kč/měsíc
Výpočet energetické náročnosti budovy
BIM projekt umožňuje zpracování různých analýz, mimo jiné výpočet energetické náročnosti. Ověřit zda výpočty budou odpovídat realitě, lze vyhodnocením již obývaného objektu. Logicky se ukazuje, že pro relevantní využití výpočtového nástroje jsou zásadní praktické zkušenosti s ním.
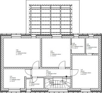
Objekt se nachází v obci Kladno. Stavba je řešena jako dvojdomek. Pro energetické hodnocení byla vytvořena pouze jedna polovina objektu (obr. BIM model). Nadmořská výška je 410 m n.m. Celý objekt je tří podlažní a skládá se ze suterénu, prvního nadzemního podlaží a podkroví. Podkroví je v některých částech rozděleno vertikálně do dvou podlaží (mezonetové pokoje). Obvodová konstrukce objektu je zděná (obvyklá tl. kce je 450 mm) s přidanou tepelnou izolací o síle 8 cm. Profilování fasády bylo zanedbáno. Střešní konstrukce je tvořena nosnými krokvemi s přidanou tepelnou izolací nad nosnou vrstvu. Tloušťka izolace je 8 cm.
V objektu žijí dvě osoby. Provoz objektu je vytvořen dle standardních zkušeností. Rozdělení časového období na víkendový provoz a pracovní den, pro které je definované různé časové využití objektu. Hodnoty používané pro výpočet jsou voleny dle normy. Dům je vytápěn plynovým kotlem, voda je ohřívána elektrickým ohřívačem.
Vypočtená spotřeba energie
Plyn: 14 502 kWh/rok
Elektřina: 6 751 kWh/rok
Klíčové hodnoty
(Kompletní zpráva generovaná ArchiCADem viz Zpráva o hodnocení.pdf)
Skutečná spotřeba energie
| Plyn: | období: | 11. 7. 2011–6. 7. 2012 | 16 279 kWh/rok | 
| 7. 7. 2012–1. 7. 2013 | 16 441 kWh/rok | ||
| 2. 7. 2013–2. 7. 2014 | 14 484 kWh/rok | ||
| Elektřina: | 5 120 kWh/rok | ||
Zhodnocení plynu: Výsledky ze třech období byly zprůměrovány a rozdíl mezi vypočtenou a skutečnou energií na vytápění je 1232,7 kWh/rok. Tato hodnota činí v přepočtu na peníze rozdíl 2032 Kč/rok. Rozdíl pro jeden měsíc činí 170 Kč/měs.
Zhodnocení elektřiny: skutečná cena elektřiny nebyla dodaná pro kompletní rok, ale jen pro zhruba 3/4 roku, zbytek byl odhadnut. Rozdíl mezi skutečnou a vypočítanou hodnotou je 1631 kWh/rok. Tato hodnota činí v přepočtu na peníze rozdíl 5282 Kč/rok. Rozdíl pro jeden měsíc činí 440 Kč/měs. Vypočet je však na straně bezpečnosti a rozdílové peníze by byly vráceny.
Doba zpracování BIM projektu
Modelování objektu: 6 hodin
Nastavení pracovních profilů, provozů atd.: 1 hodina
Odstranění nekrytých ploch: 4 hodiny
Postřehy
V modelu nelze odstranit nekryté plochy, které jsou tvořeny bočním čelem desek a stěn. U stěn to lze vyřešit změnou priority či úpravou referenční čára atd., ale je třeba vědět jak na to. Podklady k vypracování modelu byly bez tloušťek skladeb kcí (výkresová dokumentace pro rekonstrukci). Podlahu jsem tedy rozumně odhadoval. Komplikované a zdlouhavé odstraňování nekrytých ploch. Někdy je nutné ve velké míře změnit model, což není moc praktické a zabere to spoustu dalšího času.










