Súbor bytových domov a jeho navrhovanie s využitím BIM procesov
BIM procesy priniesli do projekcie zlepšenú koordináciu medzi jednotlivými profesiami a v prípade profesie statiky uľahčenie prác pri vytváraní modelu nosnej konštrukcie. Odstránila sa duplicitná robota, kde museli byť tie isté konštrukčné prvky byť modelované dvoma kanceláriami, ako architektonickou, tak aj statickou. Naviac sú teraz tieto modely prepojené a zároveň koordinované. Celý proces si v tomto článku predstavíme na projekte nosnej konštrukcie súboru bytových domov so spoločným podzemným podlažím. Je navrhovaný na základe platných európskych noriem s využitím BIM procesov pri jeho návrhu aj výkresovej dokumentácie. Štvorica bytových domov je delená na 4 bloky (každý blok pre príslušný bytový dom), delený na 4 dilatačné celky. Bloky A a B vytvárajú 1 spoločný celok, blok C a blok D osobitné celky a 1 podzemný blok prepája bloky C a D. Počas celej projekčnej fázy projektu pre stavebné povolenie bol 3D model nosnej konštrukcie prepojený s architektonickým modelom, čo zabezpečovalo koordináciu medzi architektonickou kanceláriou a projektantom statiky.
1. Úvod
Viacero predstáv funkčného riešenia BIM procesov pre statika spĺňa program Autodesk Revit v kooperácií s výpočtovým programom SOFiSTiK. Jednou z výhod je zastúpenie modelovacieho programu Revit v praxi a tak možná nadväznosť na projektanta, ktorý vám svoj model poskytne ako podklad. Samotný Revit má rôzne nástroje na modelovanie nosných prvkov konštrukcie, ako aj detailov. Analytický model nosných prvkov je vytváraný automaticky popri modelovaní samotnej geometrie nosného systému, ako môžeme vidieť na obr. 1.
Takýto analytický model môže byť modifikovaný podľa potreby projektanta, bez zmeny geometrie fyzikálneho modelu. Mať oba tieto modely konštrukcie uložené v jednej databáze umožňuje zostavovať výkresy a kótovať geometriu, a zároveň poskytuje možnosť generovania modelu na báze MKP z analytického modelu. S doplnkom SOFiSTiK BiMTOOLS vieme využiť pomoc pri kreslení a úprave pôdorysov, rezov pohľadov a výkazov pre výkresy tvaru. Automatické označenie prvkov, automatické kótovanie, vytváranie pohľadov, prierezov stĺpov, či nosníkov nielen šetrí čas, ale eliminuje aj množstvo potenciálnych chýb.
Pre exportovanie analytického modelu musí statik doplniť chýbajúce zaťaženia, okrajové podmienky, prípadne kĺby, alebo iné detaily. V Revite sú tieto modifikácie analytického modelu možné bez nutnosti zásahu do geometrie samotného modelu, prípadne jeho zobrazenia vo výkresovej dokumentácie.
SOFiSTiK FEA doplnok pre Revit (súčasťou výpočtového softvéru SOFiSTiK FEA) dopĺňa integrované nástroje pre MKP analýzu vo výpočtovom programe SOFiSTiK. Plne automatické generovanie siete konečných prvkov umožňuje rýchle zapracovanie zmien modelu preklopiť do výpočtového analytického modelu. Veľmi dôležitou súčasťou sú v nadväznosti na export materiálové informácie, prierezy a typy zaťaženia zahrnuté v mapovacích tabuľkách.
2. Nosná konštrukcia bytových domov
Novostavba bytového domu pozostáva zo 4 objektov s jedným spoločným podzemným podlažím. Bloky A, B a C sú v nadzemných podlažiach tvarovo podobné so 4 (Blok B) a 5 (Blok A a C) podlažiami. Blok D je tvarovo odlišný a má 6 nadzemných podlaží. Pôdorysné rozloženie blokov A, B a C je tvaru obdĺžnika s vonkajšími rozmermi 22,70 m × 16,20 m. Blok D (SO 01) je rovnako obdĺžníkového tvaru s vonkajšími rozmermi 50,00 m × 16,20 m. Strecha všetkých objektov je plochá, s atikou. Nad 1. PP mimo nadzemných častí jednotlivých blokov sa nachádza vegetačná strecha. Hlavný nosný systém je tvorený z obvodových a vnútorných železobetónových nosných stien, doplnený o ŽB stĺpy v 1. PP. Bytový dom tvoria 4 dilatačné celky. Samostatný pre blok C a D, spoločne pre bloky A a B a samostatný celok tvorí ešte prechodový objekt len s 1 podzemným podlažím, ktorý spája bloky C a D.
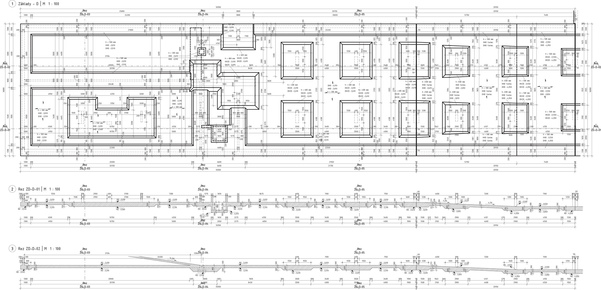
2.1 Základy
Založenie objektu je navrhnuté zo železobetónu s bentonitovou hydroizoláciou. Materiál základovej konštrukcie je betón triedy pevnosti podľa STN EN 206 C25/30 – XC3, XA1, XD1(SK) – Cl 0,4 – Dmax16 – S3. Pod úrovňou základovej škáry je navrhnutá únosná vrstva zhutnených kamenných vankúšov. Základová doska je navrhnutá s hrúbkou 300 mm a v zhrubnutiach pod stenami a stĺpmi 450–800 mm.
2.2 Zvislé nosné konštrukcie
Vnútorné a obvodové nosné steny bytového domu v priečnom aj pozdĺžnom smere tvoria ŽB steny s hrúbkou 200 mm a triedou betónu podľa STN EN 206 C25/30 – XC1(SK)–Cl 0,4–Dmax16 – S3. Ich hrúbka sa nemení ani nad strešnou doskou, keďže hrúbka atiky je taktiež 200 mm.
ŽB stĺpy sa nachádzajú len v 1. PP. Jednotlivé rozmery stĺpov je možné vidieť v projektovej dokumentácii. Navrhované sú s triedou betónu podľa STN EN 206 C30/37 – XC3(SK) – Cl 0,4 – Dmax16 – S3.
2.3 Vodorovné nosné konštrukcie
Vodorovnú nosnú konštrukciu od 2. NP a vyššie pre všetky bloky tvoria železobetónové stropné dosky hrúbky 210 mm. Bloky A, B a C majú stropnú dosky nad 1. NP hrúbky 240 mm a nad 1. PP hrúbku 250 mm. Doska nad 1. PP bloku D má rovnako výšku 250 mm, no pre strop nad 1. NP je hrúbka 210 mm. Po obvode strešnej stropnej dosky sa nachádza ŽB atika.
2.3.1 Schodisko
V strede objektov blokov A, B a C sa nachádzajú ŽB prefabrikované dvojramenné schodiská s hrúbkou 170 mm. Prefabrikát ako celok tvoria obe ramená aj medzipodesta. Prefabrikát je uložený na ozub v mieste stropných dosiek a medzipodesta je uložená na konzole na stene výťahovej šachty. Na ozube aj konzole budú použité akustické tlmiace podložky.
Schodisko bloku D je tvorené troma prefabrikátmi a vytvárajú tak trojramenné schodisko tvaru U. Zadná časť bude osadená na akustických prvkoch (napr. Tronsole) do bočných nosných stien schodiskového jadra. Táto časť má v miestach medzipodiest pripravené krátke konzoly. Dvojica zvyšných ramien je uložená na stropnej doske a spomínaných konzolách na ozub. Na ozube stropnej dosky aj konzolách budú použité akustické tlmiace podložky. Hrúbka zadnej časti je 200 mm a zvyšnej dvojice 170 mm.
3. Výpočtové modely
Vnútorné sily v konštrukcii boli rátané výpočtovým MKP programom SOFiSTiK na 3D modeli. Na obrázkoch je možné vidieť modely pre posúdenie a návrh jednotlivých nosných prvkov konštrukcie bytového domu. V tejto fáze projektu postačovali globálne modely pre jednotlivé dilatačné celky. V prípade stenového nosného systému nebolo nutné vytvárania čiastkových modelov pre jednotlivé stropy, nakoľko tuhosť zvislých nosných prvkov v podlaží je pomerne rovnaká pre celý pôdorys budov (ŽB nosné steny s hrúbkou 200 mm). Pre spresnenie výsledkov by mohlo byť použité aj fázovanie výpočtového modelu, no z rovnakého dôvodu by rozdiel výsledkov pre jednotlivé stropy bol minimálny.
Obr. 5: MKP modely 3 dilatačných celkov pre návrh prvkov nosnej konštrukcie
(a) – blok A a B; b) – blok C; c) – blok D)
4. Návrh nosných prvkov
Návrh ŽB stien, stropov a základových dosiek pre MSÚ bol posudzovaný na základe kombinácií z lineárnych zaťažovacích stavov (vl. tiaž, ost. stále zaťaž., úžitkové zaťaž., zaťaženia vetrom, snehom a seizmicitou a zaťaženie zeminou). Naviac pre stropné a základové dosky boli v rámci výpočtového programu posudzované aj miesta na pretlačenie (stĺpy a rohy či konce stien, alebo nosníkov).
Pri posudzovaní priehybov stropov, ako aj priebehu trhlín bol použitý nelineárny výpočet so zohľadnením nelineárnych materiálových charakteristík a vplyvu dotvarovania a zmrašťovania pre predpokladanú životnosť 50 rokov. Výpočtový program delí 2D elementy po hrúbke na 10 dielikov, vďaka čomu sa z nelineárnych výsledkov dá odčítať napätie vo výstuži v jednotlivých smeroch, pretvorenie a napätia betónu ako aj hĺbku a priebeh trhlín. Na obrázku Obr. 6 je vybraná nelineárna kombinácia na globálnom modeli blok A a B s priebehom napätí na vybranom medzi-podperovom elemente.
5. Využitie BIM procesov
O BiM-e (Building Information Modelling) je v poslednom čase v projekčnej praxi počuť čoraz viac. Prvé projekty sú už dávno za nami a dožadovanie sa tohto štandardu sa blíži zo strany väčších investorov k železnej pravidelnosti. Často sa ale stretávame s problémom, kto si čo pod týmito tromi písmenami predstavuje.
Zvýšenie časovej efektivity si každý predstaví pod uľahčením, prípadne odstránením niektorých procesov. V prípade spolupráce s projektantom v BIM procese je tým jednoznačným uľahčením práca na spoločnom, zdieľanom, alebo prepojenom modeli. Prvá výhoda spoločná pre všetky 3 riešenia je samozrejme zlepšená koordinácia oboch profesií. Ďalším veľmi zaujímavým použitím je preberanie celého modelu nosnej konštrukcie. To za predpokladu, u nás zaužívaného, projekčného procesu, kedy ako podklad projektanta sú už aj nosné prvky budovy. V tomto projekte sa využil práve tento systém prebratia nosných prvkov funkcionalitou „Copy-Monitor“ 3D modelovacieho programu REVIT.
Okrem automatického preberania prvkov nosnej konštrukcie a samozrejme prepojenia pre koordináciu zmien je ďalšou z možných výhod automatické zostavenie analytického modelu na základe fyzikálneho. Pre využitie tohto modelu je nutné aby bolo napojenie výpočtového softvéru bezproblémové a naviac bez potreby ďalších úprav. Takým spôsobom bolo po zapracovaní zmien možné spustiť výpočet a skontrolovať ich dopad na nosnú konštrukciu.
Po odladení nosného systému budovy sa hneď v zapätí mohla začať kompletizácia výkresov tvaru, nakoľko model bol hotový a tak stačí doplniť kóty a popisy. Na nasledujúcom obrázku je možné vidieť analytický model spolu so všetkými zaťaženiami v 3D modelovacom programe, kde sú tieto analytické plochy, prípadne prúty napojené na ich fyzikálny model.
V priebehu projektu bola požiadavka aj na analýzu iných materiálových variant hornej stavby. Preveriť základné rozmery prvkov pri využití prefabrikovaného systému, kde budú použité spiroll panely kombinované s filigránovými doskami v blízkosti jadra a filigránovými stenami. Pre tento prípad bolo veľmi rýchle vyhodnotiť túto alternatívu. Stačilo doplniť kĺby na hranách 2D analytických plôch modelu, prípadne zadať pružný rotačný spoj v prípade hlavy a päty filigránových stien. Následne len nastaviť ortotropné správanie sa spiroll panelov pre vystihnutie uloženia a roznosu síl na zvislé nosné prvky. Po overení výsledkov bolo možné s využitím nadstavby Precast, ktorý je súčasťou Revitu 2019 rozdeliť stropné prvky na jednotlivé prefabrikované panely.
Ďalším krokom, vo fáze realizačného projektu, bude zadávanie výstuže do jednotlivých prvkov. Tu je taktiež zabezpečená koordinácia výkresov tvarov nosnej konštrukcie a výstuže, nakoľko samotný tvar tvorí debnenie pre zadávanú výstuž.
6. Závery
Využitím BIM technológie bolo možné výrazne znížiť čas potrebný na duplicitnú prácu. Nakoľko architektonická kancelária už mala väčšinu nosných prvkov konštrukcie namodelovanú, projektant statiky mohol tieto prvky prebrať a prípadne upraviť detaily. Druhé výrazne časové zrýchlenie bola výhoda programu REVIT, kde sa analytický model vytváral na pozadí fyzikálneho modelu a stačilo model len upravovať a zaťažiť, nie vytvárať. Tento časový náskok bolo možné využiť na riešenie kritických detailov a optimalizáciu nosnej konštrukcie.
Takýto postup pri navrhovaní nosných konštrukcií (s využitím BIM procesov) sa majú možnosť učiť aj na Stavebnej fakulte na STU v Bratislave. Nie len že už prebehol prvý semester výučby, ale vybraný študenti ho začali využívať aj v rámci ateliérovej tvorby. Do budúcna je možné takýto systém zaviesť do pripravovanej koordinácie v rámci diplomových prác, kde by už v inžinierskom štúdiu mali študenti možnosť spolupracovať na projekte naprieč katedrami. Naučili by sa nie len technickej časti preberania modelu od architekta a spätnej koordinácii pri zmenách ale aj komunikácii pri projekčnej spolupráci s rôznymi profesiami.
Literatúra
- STN EN 1990: Zásady navrhovania konštrukcií. Bratislava, 2009.
- STN EN 1992-1-1: Navrhovanie betónových konštrukcií. Časť 1-1: Všeobecné pravidlá a pravidlá pre pozemné stavby. Bratislava, 2006.
- www.sofistik.com
BIM processes have brought to the design process improvement in co-ordination between different professions and, in the case of the statics profession, facilitating the creation of a load-bearing structure model. The duplicate work was removed, where the same structural elements had to be modeled by two offices, both architectural and static. In addition, these models are now interconnected and coordinated. In this article, we will present the entire process on a project of the load-bearing structure of a set of apartment buildings with a common underground floor. It is designed on the basis of current European standards using BIM processes for its design and drawing documentation.









