Biologické čistírny odpadních vod AS - VARIOcomp N 30-500 EO
Čistírny řady AS VARIOcomp N (dále jen VARIO N) navazují především na v praxi ověřenou řadu biologických aktivačních čistíren typu VARIOcomp V a také na zkušenosti s malými čistírnami AS VARIOcomp K. Změny vycházejí především z požadavků Evropských normy ČSN EN 122553 Čistírny odpadních vod díl 1-16 a podle této normy (část 8, příloha A, tabulka A1) patří mezi čistírny s parametry vyhovujícími pro nitrifikaci. Kalový prostor je standardně dimenzován na 100 dnů.
| Požadované čištění | Druh aktivace |
Zatížení kalu kg (kg.d) |
Koncentrace aktivovaného kalu g/l |
Aerobní stáří kalu D |
| Částečné čištění | vysoko zatěžovaná | ≥ 1,0 | 1,5 až 2,0 | ≤ 1 |
| Oxidace sloučenin obsahujících uhlík | středně zatěžovaná | 0,25 až 0,50 | 2,0 až 3,0 | 2 až 4 |
| Nitrifikace | nízko zatěžovaná | 0,10 až 0,15 | 3,0 až 5,0 | 7 až 12 |
| Nitrifikace a denitrifikace | s odstraňováním dusíku | 0,07 až 0,09 | 3,0 až 5,0 | 12 až 15 |
| Aerobní stabilizace kalu | s prodlouženou aerací | 0,04 až 0,07 | 3,0 až 5,0 | 15 až 30 |
| Odstraňování fosforu (fosforečnanů) vyžaduje anaerobní dobu kontaktu 0,5 h až 2,0 h a/nebo odpovídající dávkování srážedla |
||||
| Odstraňování dusíku vyžaduje anoxickou sekci velikosti až objemu aktivační nádrže. | ||||
| Tyto hodnoty platí pro teploty vyšší než 10°C | ||||
| Typické návrhové hodnoty pro aktivační proces (ČSN EN 122553-6) |
Popis jednotlivých typů
VARIO N se vyrábí ve dvou základních provedeních. Základní provedení uvažuje s tím, že voda do čistírny natéká gravitačně a není třeba čerpání. Druhá varianta - provedení PUMP je pak určena především pro lokality, kde z důvodů výškových je čerpání nutné. V případech, kdy je nutné snižovat i obsah fosforu, lze do čistírny umístit i proporcionální dávkovač - do označení ČOV je pak přidáno i písmeno P.
Příklad objednávání:
AS VARIOcomp 60 N/P - čistírna určená pro 60 EO, s parametry odpovídajícími nitrifikaci a s proporcionálním dávkovačem pro snížení obsahu fosforu.
AS VARIOcomp 100 N/PUMP - čistírna určená pro 100 EO, s parametry odpovídajícími nitrifikaci, s vestavěnou čerpací stanicí.
AS VARIOcomp 150 N/PUMP/P - čistírna viz předchozí, s proporcionálním dávkovačem pro snížení obsahu fosforu.
Popis funkce
AS VARIOcomp N
Voda natéká do usazovací nádrže, která slouží zároveň i jako zásobník kalu. Zde je zbavena sedimentujících a plovoucích částic a natéká do aktivace. V prostoru aktivace je biologicky čištěna mikroorganismy, které se vznášejí ve formě vloček. Dále natéká do dosazovací nádrže, kde dochází k usazování vytvořených vloček a jejímu odtahu ze zařízení. Usazené vločky z dosazovací nádrže se vrací do aktivace, část vloček z aktivace - přebytečný kal, je odtahován do kalové nádrže.
AS VARIOcomp N/P
Je oproti typu N doplněn o proporcionální dávkovač, což je zařízení umožňující dávkování koagulantu do aktivace a chemické srážení fosforu. Zařízení se umístí do prostoru čistírny a není třeba dalších stavebních úprav ani zvláštního přívodu elektrické energie.
AS VARIOcomp N/PUMP
Má na rozdíl od základního typu integrovanou čerpací jímku vybavenou kalovými čerpadly a česlovým košem. Voda z čerpací jímky je pak čerpána přímo do aktivace.
Poznámka:
Modifikací této řady - zmenšením aktivace, nebo použitím menší čistírny, lze získat čistírnu s parametry vyhovujícími pro oxidaci sloučenin obsahujících uhlík (řada C) (toto řešení je vhodné i tam, kde lze předpokládat málo znečištěné vody) a naopak zvětšením aktivace a včleněním anoxické sekce (a tedy i zvětšením celkových rozměrů) lze pak čistírnu uzpůsobit i k odstraňování dusíku (řada D).
Individuálně lze také upravit objem pro skladování kalu, případně i jeho hygienizaci.
Garantované hodnoty pro typy N pro čištění komunálních vod při dodržení instalačních a provozních podmínek.
| Parametr | Hodnoty "p" | Hodnoty "m" |
| BSK 5 | 25 mg/l | 60 mg/l |
| CHSK | 100 mg/l | 130 mg/l |
| NL | 25 mg/l | 60 mg/l |
U typů "P" s proporcionálním dávkovačem je možno garantovat obsah Pcelk do 2 mg/l.
![]() Základní varianta AS VARIOcomp N |
![]() Varianta s čerpací stanicí AS VARIOcomp N/PUMP |
Sestavy čistíren
Čistírny větší než 150 EO je možno navrhovat tak, že voda je přiváděna do individuálně navržené čerpací šachty vybavené česlemi a střídavě pracujícími kalovými čerpadly, jejichž počet odpovídá počtu použitých jednotek např. AS VARIOcomp 100. Přičemž vnitřní uspořádání jednotlivých čistíren odpovídá uspořádání "PUMP", avšak bez integrované čerpací jímky.
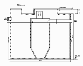
Příklad řešení AS VARIOCOMP 300 N/PUMP
Na obrázku je vidět realizace čistírny sestávající ze dvou jednotek o velikosti 150 EO s předřazenou čerpací jímkou.
Popis stavebních úprav
Čistírny, u nichž je hloubka založení větší než 3 m, jsou určeny k obetonování, obetonovat je nutno i čistírny se zvýšenou hladinou podzemní vody. Napojení potrubí je nutno provádět pružnými spoji. Dmychadlo (a) je umístěno v oddělené odvětrané šachtě o půdorysných rozměrech 1000x840 mm, která je součástí dodávky a zpravidla je umístěna v blízkosti vstupu do čistírny. Horní hrana šachty a horní hrana vstupu do čistírny jsou ve stejné výšce. Výška šachty se řídí použitými aparáty a pohybuje se od 500 do 700 mm. Rozváděč s ovládáním se umístí na stojanu v blízkosti šachty, nebo v budově a propojení s šachtou se provede chráničkou minimálně o průměru DN 63.
Informace
Prospekt i podrobnější informace o čistírnách je možné najít na www.asio.cz, případně i konzultovat přímo s odpovědným technikem ve firmě. K dispozici jsou i typové podklady zpracované v CAD.
Závěr
Věříme, že inovovaná řada přinese jak zjednodušení do navrhování těchto velikostí čistíren, tak je i dostatečně variabilní pro případy, kdy se bude jednat o atypické prostorové umístění, případné přísnější požadavky vodohospodářských orgánů, nebo speciální požadavky na dopravu např. do zahraničí. Také po stránce ceny se tato čistírna řadí mezi ty, které se díky jednoduché konstrukci pohybují v nižších cenových relacích a jsou tedy i více prodejné. Zvýšený počet realizací tohoto typu čistíren v roce 2004 uvedené výhody jen potvrzuje.

Společnost ASIO TECH, spol. s r.o. a ASIO NEW, spol. s r.o. poskytuje komplexní dodavatelské služby v oblasti čištění odpadních vod, úpravy vod a čištění vzduchu.

