Pasivní domy - výzva dneška
Desítky pasivních domů stavěných díky nadšení projektantů a investorů nemohou vyvážit desetitisíce komerčně stavěných tepelně-technicky špatných domů, které zcela zbytečně dlouhodobě zatíží naše životní prostředí i peněženky bydlících nadměrnou spotřebou energie. Říkají v závěru článku jeho autoři.
Úvod
Zdražování energie vyvíjí tlak na snižování energetické náročnosti provozu budov. To se odrazilo i v úpravě normy pro tepelnou ochranu budov, kde se dnes doporučují hodnoty tepelné izolace obálky asi pětkrát vyšší, než tomu bylo před zhruba 15 lety. Ovšem ani doporučení této normy nejsou dostatečně jasnozřivá, spíše odrážejí možnosti stávajícího trhu stavebních hmot a stavebních systémů nežli potřeby budoucnosti. Silná konzervativnost je totiž přirozená všem normám.
Jestliže si uvědomíme, že dům stavíme na asi 100 let, měli bychom prozíravě navrhovat domy tak, že svými parametry alespoň částečně obstojí po celou tuto dobu. Především se to týká parametrů budovy, jichž lze lehce dosáhnout při její výstavbě a složitě je lze zlepšit později. Příkladem takového parametru je např. tepelně-izolační schopnost neprůhledného pláště budovy.
Před zhruba 20 lety byl v německy mluvících zemích započat výzkum nízkoenergetického stavění, jehož cílem bylo nalézt optimální řešení pro stavbu budov s velmi nízkou energetickou náročností na jejich provoz. Postupně byl zaveden pojem "pasivní dům", který zdomácněl i u nás. Pasivní dům by již podle svého názvu měl dosahovat velmi nízké provozně-energetické náročnosti hlavně pasivními prostředky, tj. výbornou tepelnou izolací a těsností obálky a slunečními zisky okny o vhodné orientaci a velikosti.
Časem se však mnohé realizace snaží pasivní dům "vylepšovat" řadou aktivních systémů. Ty sice na jedné straně přinášejí další úspory energie, na druhé straně však často částečně suplují potřebu výborně tepelně izolující obálky. Těžko říci, zda je to vlivem lobistických tlaků výrobců aktivních technických zařízení budov nebo je stavba velmi dobře izolující obálky tak drahá a technicky náročná, že je využití aktivní techniky ekonomicky výhodnější. Každopádně lze konstatovat, že je problém konstrukce velmi dobře izolující a těsné neprůhledné obálky budov opomíjen. Stále totiž na trhu neexistuje dobrý a levný stavební systém pro neprůhlednou obálku pasivních domů. Tudíž se nelze divit, že téměř každý projektant odmítá pasivní domy projektovat a běžná stavební firma odmítá pasivní domy stavět.
Dům pro čtyřčlennou rodinu
Představme si rodinný dům pro čtyřčlennou rodinu o podlahové ploše 160 m2 s plochou neprůhledné obálky 450 m2 a 25 m2 oken. Na každého člena rodiny, je-li doma, je třeba vyměňovat asi 30 m3 vzduchu za hodinu, je tedy při průměrné poloviční obsazenosti v domě třeba vyměňovat 60 m3 vzduchu za hodinu (toto množství je též právě vhodné k odvodu vlhkosti vzniklé běžným provozem v domě a nevede k výraznému poklesu relativní vlhkosti vzduchu v domě při mrazivém počasí).
Postavíme-li popsaný dům podle doporučených hodnot v naší normě pro tepelnou ochranu budov a počítáme-li délku topné sezóny 180 dní při teplotním rozdílu 20 K, budou tepelné ztráty za rok
| Neprůhlednou obálkou s U=0,2 W/(m2.K) | 7800 kWh |
| Okny s U=1,2 W/(m2.K) | 2600 kWh |
| Výměnou vzduchu bez rekuperace | 1900 kWh |
Tepelné zisky provozem v domě lze odhadnout paušálem 3 W/m2, což představuje zisk v topné sezóně 1900 kWh, a s obdobnou hodnotou lze počítat i od slunečních zisků okny. Měla by tedy být roční potřeba tepla na topení v takto postaveném domě kolem 8500 kWh/rok, dům by měl měrnou spotřebu 53 kWh/m2/rok a atakoval by parametry nízkoenergetického domu.
Postavíme-li rodinný dům s neprůhlednou obálkou a okny podle doporučení pro pasivní domy a budeme-li uvažovat stejnou topnou sezónu (ve skutečnosti bude kratší), budou tepelné ztráty za rok
| Neprůhlednou obálkou s U=0,1 W/(m2.K) | 3900 kWh |
| Okny s U=0,8 W/(m2.K) | 1700 kWh |
| Výměnou vzduchu s rekuperací | 500 kWh |
Uvažujeme-li stejné zisky jako u předchozího domu, bude roční spotřeba tepla na topení v takto postaveném domě kolem 2300 kWh/rok, dům by měl měrnou spotřebu 14 kWh/m2/rok a splňoval by parametry pasivního domu.
Každopádně je z uvedených jednoduchých výpočtů zřejmé, že prostup tepla neprůhlednou obálkou je i u domu postaveného podle standardu pasivního domu dominantní a tedy je to hlavně neprůhledná obálka domu co rozhoduje o jeho energetické kvalitě.
Současný stav na našem trhu - trpí nešvarem
Stávající stavební a zateplovací systémy trpí jedním společným nešvarem. Ač výrobci tepelně izolačních hmot prodávají tyto hmoty za asi 600 Kč/m3 - minerální vata a za asi 1000 Kč/m3 - pěnový polystyren, cena kubického metru zabudované tepelné izolace je mnohonásobně vyšší; drtivá většina stavebních systémů použití izolací větších tlouštěk vůbec neumožňuje anebo je nárůst ceny astronomický. Již tloušťky izolací kolem 30 cm ve stěnách či sedlových střechách působí nemalé potíže a tomu odpovídá i cena. Tloušťky izolací kolem 40cm jsou však pro pasivní domy nutností. O neutěšeném stavu na našem trhu svědčí i fakt, že stavba prakticky každého pasivního domu je pionýrský čin nutící odvážného projektanta používat atypická řešení. Jako příklady lze uvést velmi tlusté zateplovací systémy na velmi tenkých obvodových nosných zdech v případě masivních staveb nebo mnohovrstvé tepelné izolace na dřevostavbách s tyčovou či rámovou nosnou konstrukcí.
Požadavky na nový stavební systém pro pasivní domy
Obvodové stěny a střešní konstrukce pro pasivní domy by měly splňovat řadu kritérií:
- zajistit jednoduché zabudování levné izolace v tloušťce kolem 40 cm bez vzniku tepelných mostů,
- být nosnými a dostatečně tuhými - převzít rozhodující úlohu při řešení statiky budovy,
- být dostatečně neprůvzdušnými a neprozvučnými, bez možnosti kondenzace vlhkosti v konstrukci,
- umožnit jednoduchou instalaci rozvodů technického zabezpečení budov
- být o přijatelné celkové tloušťce nejlépe do 50 cm,
- být dostatečně levné a při aplikaci málo pracné a komplikované.
Jistě je u takového systému vhodné, aby byl i při samotné výrobě energeticky nenáročný. Též je vhodné, aby obvodový plášť dobře plnil tepelně a vlhkostně akumulační funkci; toto však lze u velmi dobře zateplených staveb oželet a počítat hlavně s akumulační schopností vnitřních konstrukcí.
Dřevo je vyzkoušený materiál pro stavbu nosných obvodových stěn domů. K zajištění statiky obvodové stěny stačí vytvořit skelet z dřevěných hranolů o podstatně menším nosném průřezu než je v případě masivních stěn. Prostor mezi dřevěnými hranoly lze vyplnit tepelně-izolačním materiálem a tím výrazně zvýšit tepelný odpor nosné části obvodové stěny. K dosažení kýžených 40 cm izolace v obvodové stěně však musíme stěnu ještě zvenku dodatečně zateplit nějakým zateplovacím systémem. Tak získáme dobře zateplenou stěnu o poměrně malé tloušťce. Nevýhodou tohoto řešení je však příliš vysoká cena a pracnost bez možnosti umístění rozvodů kanalizace či vzduchotechniky v obvodové stěně. Tento systém vlastně vznikl spojením dvou standardních systémů - systému pro dřevostavby a zateplovacího systému.
Podobný, ne-li složitější, problém nastane v případě, když chceme i sedlovou střechu izolovat 40 cm tepelné izolace. Krokve totiž mají běžně výšku 20 cm a dalších 20 cm musíme poměrně složitě vytvořit nad nebo pod krokvemi.
Dřevěné a ocelové příhradové konstrukce jsou demonstrací důvtipu, jak lze efektivně využít mechanických vlastností materiálů k výrobě stavebních prvků i celých objektů s vysokou únosností a tuhostí. Navrhneme-li skelet obvodových stěn a konstrukci sedlové střechy z příhradových nosníků o výšce 40 cm, budou moci být tyto prvky poměrně subtilní a zároveň vznikne v konstrukci pláště přiměřený prostor pro umístění izolace i vzduchotechnických a kanalizačních rozvodů. Je třeba podotknout, že v tomto případě se nemusí tepelná izolace kotvit či povrchově upravovat, lze tedy použít tu nejlevnější tepelnou izolaci a není též důvod k výraznému navýšení ceny při jejím zabudování do konstrukce.
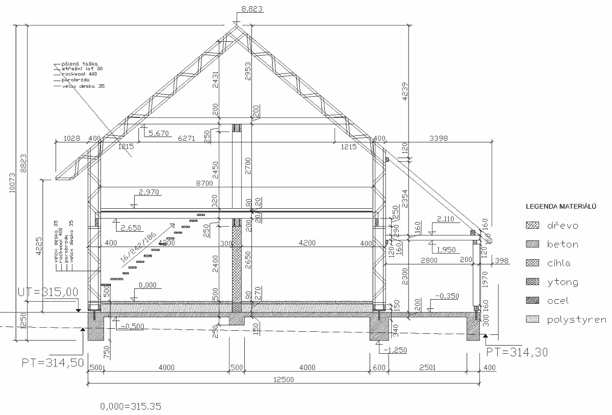
Příhradové nosníky o výšce 40 cm jsme využili v projektu pasivního rodinného domu ke konstrukci obvodových stěn i sedlové střechy (viz Obr. 1). Příhradová konstrukce je vyrobena ze čtyř hranolů o průřezu 35x70 mm a příčníků o průřezu 20x80 mm. Spoje jsou lepeny a staženy svorníky; touto technologií lze vyrábět příhradové prvky do délky 10 m.

Obr. 1: Příklad konstrukce domu s obvodovým pláštěm z příhradových nosníků
(po kliknutí se obrázek zvětší)
Detaily skladeb obvodové stěny a střechy jsou zobrazeny na Obr. 2. Díky počítačovému navrhování projektu jsou všechny konstrukční příhradové prvky dány s milimetrovou přesností, a proto lze tyto prvky vyrobit přesně v dílně a na místě je jen smontovat. Letos jsme vyrobili příhradové prvky na první dům a ukazuje se, že výroba příhradových prvků je velmi jednoduchá, levná a investičně nenáročná. První odhady ukazují, že takto vyrobené konstrukce obvodového pláště a střechy s U = 0,1 W/(m2.K) pro stavbu pasivních domů jsou levnější než jiné konstrukce obvodového pláště na trhu s podstatně menším tepelným odporem. Pro pultové střechy lze vyrobit příhradové prvky s větší výškou a s klínovitým tvarem, čímž je pomocí jediného konstrukčního prvku vyřešeno vyspádování střechy a současně vznikne ve střešní konstrukci dostatečný prostor pro umístění tepelné izolace i provětrávané mezery.

Obr. 2: Detail skladby obvodové stěny a šikmé střechy využívající příhradové konstrukce
Jaké další vybavení do pasivního domu?
Máme-li vzbudit zájem veřejnosti, projektantů i stavebních firem o nízkoenergetické stavění, je třeba poskytnout širokou nabídku vybavenosti domu počínaje zcela jednoduchým vybavením na úrovni běžných domů, až po vybavení řadou aktivních systémů zvyšujících komfort bydlení a snižujících spotřebu energie na provoz domu. Je třeba překonat mýtus, že mezi obyčejným domem a nízkoenergetickým či pasivním domem je jakýsi těžko překonatelný kvalitativní skok projevující se mimo jiné v nákladech na stavbu a v náročnosti vybavení aktivními systémy.
Dá se předpokládat, že námi projektovaný rodinný dům (smíšená stavba s dřevěnou nosnou konstrukcí obvodových stěn, střechy a stropu, cihlovou konstrukcí vnitřních stěn a betonovou konstrukcí podlah) se bude blížit standardu pasivního domu, i když by po všech ostatních stránkách byl vybaven jako běžné domy. O vybavení domu aktivními systémy by měl rozhodovat sám zákazník na základě objektivních informací o jejich rentabilnosti.
Předně je třeba zvážit, zda volit okna s trojvrstvým zasklením či jen s dvojvrstvým. Jelikož trojvrstvé zasklení propouští asi o 20% méně světla než dvojvrstvé zasklení, je již při projektování třeba s tímto údajem počítat a navýšit pro případ trojvrstvého zasklení plochu oken. Jelikož okna s trojvrstvým zasklením propouštějí přibližně o 30-40% méně tepla a přitom jsou na 1m2 asi o 30-40% dražší, jeví se použití oken s trojím zasklením na mezi rentabilnosti. Proto je vhodné nechat volbu oken na zákazníkovi. Koneckonců lze předpokládat, že za několik desítek let budou okna na podstatně vyšší úrovni než dnes a bude vhodné okna v domě tak jako tak vyměnit - to uděláme s podstatně lehčím srdcem použijeme-li dnes při stavbě levná okna.
Ventilační systém se jeví v dobře zatěsněném pasivním domě jako nezbytnost. Každopádně je vhodné vybudovat již při zakládání domu podzemní vzduchový výměník a při stavbě provést vzduchotechnické rozvody v obvodovém plášti domu (to lze dělat dodatečně jen velmi obtížně). Zda budovat či nebudovat kompletní ventilační systém se zpětným získáváním tepla z odpadního vzduchu, to bychom opět měli nechat na volbě zákazníka. Stejně jako trojskla jsou i rekuperační jednotky na hranici rentability a opět lze očekávat, že za několik desítek let budou vzduchotechnické jednotky podstatně dokonalejší, než jsou dnes.
Do třetice visí nad rentabilitou otazník i v případě slunečních kolektorů. I zde můžeme jen doporučit nezavírat vrátka a alespoň protáhnout potřebné rozvody, vyhradit místo pro možnou instalaci kolektorů a zásobníku a vyčkávat, s čím nás výrobci překvapí.
Ani systém vytápění nemá dnes svého jasného favorita. Jako nejvhodnější kompromis se jeví coby zdroj tepla pro topení a ohřev vody plynový kondenzační turbokotel (nemusí se stavět komínové těleso) nebo tepelné čerpadlo. Jelikož je v obou případech žádoucí mít topné medium o co nejnižší teplotě, je vhodné použít v domě těžké plovoucí podlahy s podlahovým topením. Pracovní teplota topného media pak stačí zhruba 35°C/25°C a při těchto pracovních teplotách lze na podlahové topení použít velmi levných černých polyetylénových hadic. Jako s častou variantou se u pasivních domů setkáváme s přímotopy, které jsou investičně nejméně náročné a při velmi nízké energetické spotřebě pasivního domu se provozní náklady příliš nezvýší.
Závěr
Ač pasivním domům patří budoucnost, je jejich podíl na nové výstavbě zatím zanedbatelný. Bohužel, místo toho, aby se hledala jednoduchá, dostatečně levná a lehce reprodukovatelná řešení výstavby pasivních domů, z nichž by časem vznikl stavební systém, hledají se spíše stále dokonalejší leč komplikovanější řešení problémů, které stavební praxe nepřijímá.
Desítky pasivních domů stavěných díky nadšení projektantů a investorů nemohou vyvážit desetitisíce komerčně stavěných tepelně-technicky špatných domů, které zcela zbytečně dlouhodobě zatíží naše životní prostředí i peněženky bydlících nadměrnou spotřebou energie.